100) ? false : true; navIsShown = (window.pageYOffset > heroHeight) ? true : false; triggerTransitions = window.pageYOffset > (heroHeight / 2) ? true : false; if (navIsOpen && !atTop && !navIsShown) navIsOpen = false; ">
Toggle Navigation
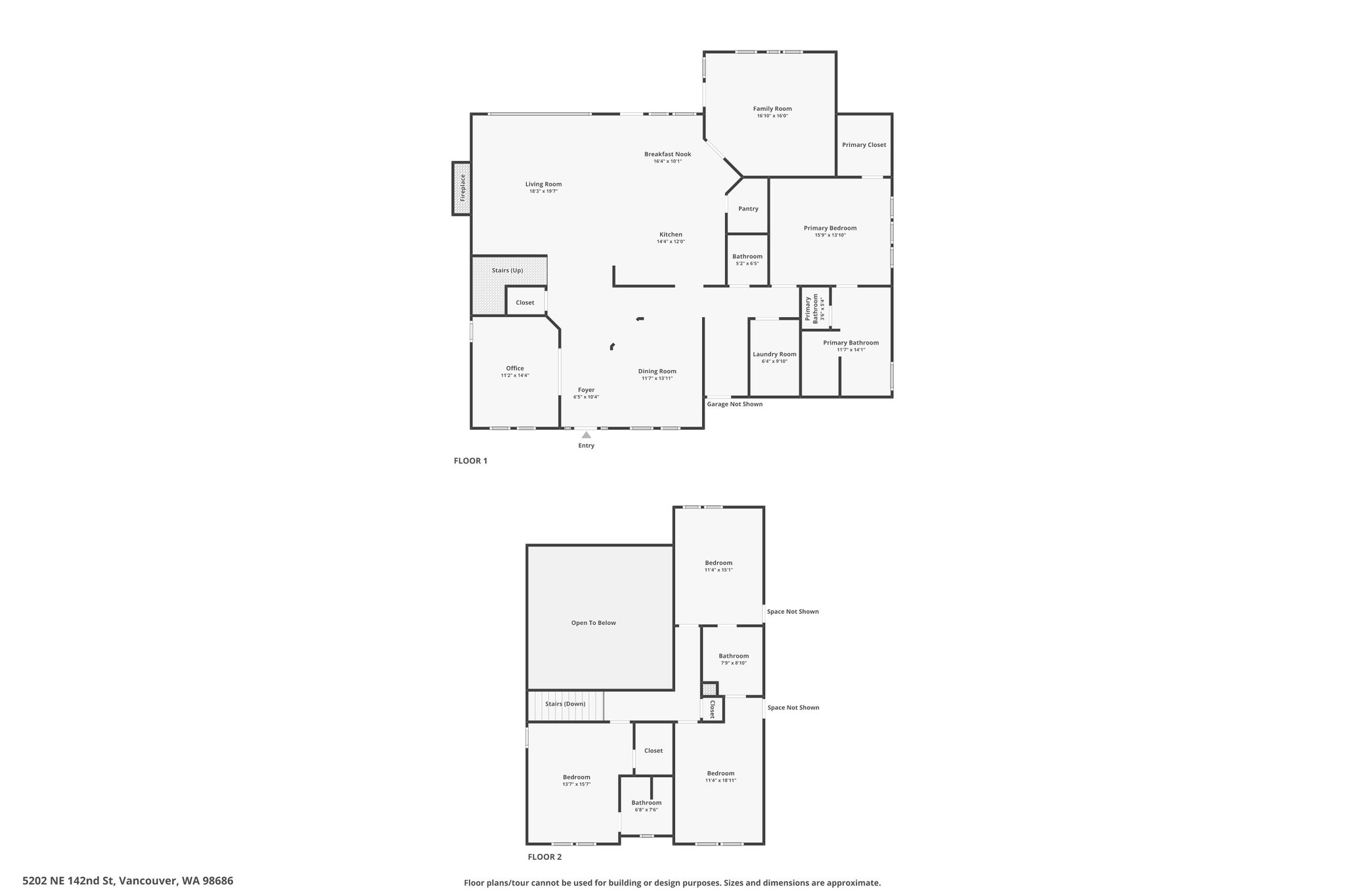
5202 NE 142nd St, Vancouver, WA 98686
Images
Videos
Floor Plans
3D Tour
Map
Previous Slide
Next Slide
View Gallery
3D Tour
Slideshow
Photo Grid
Hide
Previous
Next
5202 NE 142nd St
Vancouver, WA 98686
Images
Show more
Slideshow
Photo Grid
Hide
Previous
Next
Videos
Floor Plans
Slideshow
Photo Grid
Hide
Previous
Next
3D Tour